По запросу
Нашли дешевле?
Под заказ
Наши менеджеры обязательно свяжутся с вами и уточнят условия заказа
Описание
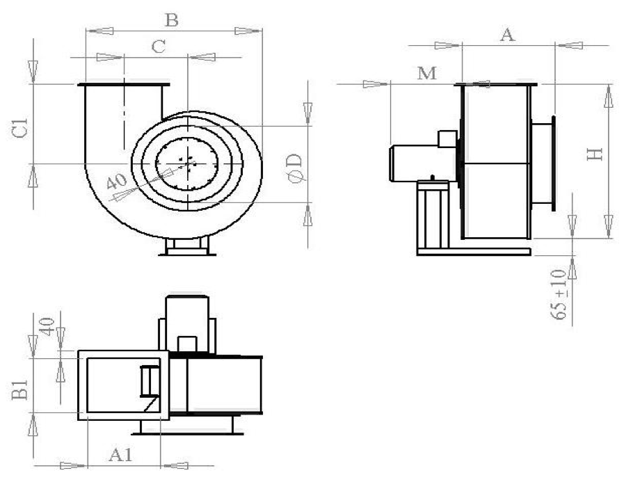
Габаритно-присоединительные размеры

| А | B | C | H | M | А1 | В1 | С1 | D |
| 277 | 455 | 162,5 | 530 | Max 325 | 175 | 175 | 304 | 250 |
Аэродинамические характеристики

